Der Anger soll längs durch den ersten Bauabschnitt laufen. Im südlichen teil wird schon gepflastert.
Ein Anger für Freiham
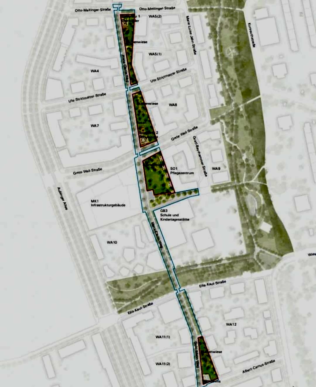
Das „grüne Rückgrat“ von Freiham, wie Baureferentin Jeanne-Marie Ehbauer in der Presseerklärung sagte, wird sich einmal vom zukünftigen Mahatma-Gandhi-Platz bis in den Norden Neu-Freihams an der Gustl-Bayrhammer-Grundschule erstrecken. In vier Abschnitten sollen hier Grün- und Freiflächen mit Spiel- und Liegemöglichkeiten, Blumenwiesen, Obstbaumgruppen und der zentrale Brunnenplatz als Treffpunkt und Ortsmitte entstehen.

## Grünflächen, Brunnen und Sand-Kletter-Tobe-Rutschparadiese
Laut Planungskonzept gibt es drei Spielbereiche für Kinder unterschiedlichen Alters. Im Norden ist ein Spielbereich für Kleinkinder mit Sandfläche und niedrigen Spielgeräten, Hängematten und Wippen vorgesehen.
An die Grete-Weil-Straße kommt ein Spielbereich für Schulkinder. Dementsprechend höher werden hier die Kletterkonstrukte sein. Vertikale Baumstämme, Rutschen und Schaukeln, Trampoline und Hängematten ergänzen das Angebot.
Der dritte Spielbereich wird an der Albert-Camus-Straße realisiert und enthält Tischtennisplatten und unterschiedlichen Sitzmöglichkeiten einen Treffpunkt für Jugendliche und Erwachsene.

## … für 2,2 Millionen
„Die Umsetzung des Projekts erfolgt im Zusammenhang mit der Fertigstellung der angrenzenden Hochbaumaßnahmen. Zudem ist der Endausbau des Golo-Mann- und des Hans-Clarin-Wegs zu berücksichtigen“, so die Presseerklärung aus dem Rathaus weiter.
Als Baubeginn ist das Frühjahr 2024 genannt. Fertig soll das Ganze – inklusive der Freigabe der Rasen- und Wiesenflächen – in einem Jahr, also im Frühjahr 2025 sein. Die genehmigten Projektkosten belaufen sich auf 2,2 Millionen Euro.
## Glanzpunkt: der Brunnenplatz
Der Bezirksausschuss 22 ist zuversichtlich gestimmt. „Freiham wächst weiter. Und es ist gut, dass nun auch wieder etwas mehr grüne Flächen dazu kommen. Zu dem vorhandenen Grünband kommt auch eine weitere, wenn auch geringere grüne Achse durch Freiham, parallel zur Aubinger Allee“, erklärte BA-Vorsitzender Sebastian Kriesel.
Ein Manko werde aber der Abschluss im Süden sein. Denn die Fahrradhauptroute könne nicht auf den großen Stadtplatz vor dem neuen Einkaufszentrum an der Bodenseestraße geführt werden und müsse eine Umwegschleife nehmen. „Was mich persönlich aber sehr freut, es wird auf Höhe der Grundschule an der Gustl-Bayrhammer-Straße einen großen Brunnen geben. Dies ist ein wertvolles und prägendes Element in der Gestaltung.“
